Чердачная лестница Fakro LWS Plus 700*940*2800








Общие параметры
До: 2800 мм
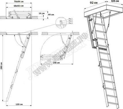
Размеры
Минимальное расстояние до стены: 1380 мм;
Глубина короба: 140 мм
Длина: 940 мм
Длина: 940 мм;
Глубина: 370 мм
Глубина: 80 мм
Погрешность при производстве может составлять +- 2 мм.
Производитель на свое усмотрение и без дополнительных уведомлений может менять комплектацию, внешний вид и технические характеристики модели.
В Вашем случае однозначно нужна чердачная лестница с максимально утепленной крышкой!
Чтобы учесть все нюансы и не ошибиться с выбором типа и размера чердачной лестницы, позвоните по тел.+7 (800) 775-25-37, мы Вас полноценно проконсультируем
Чтобы оформить доставку, сначала нужно оформить заказ на чердачную лестницу.
Вы можете оформить заказ самостоятельно на сайте, после оформления менеджер с Вами свяжется для уточнения и подтверждения всех деталей.
Либо можете позвонить на номер +7 (800) 775-25-37 и получить консультацию и сразу оформить заказ с менеджером, либо можно написать о своем желании оформить заказ в почту mail@luchki.ru, опять таки менеджер с Вами свяжется.
Данные указаны в таблице во вложении. Упакована лестница в плотный полиэтилен, снизу проложен лист двп, защищающий крышку.
Интересует глубина.
Размеры ступени: Ширина 8см, Длина 34см, Толщина 2 см.
Расстояние между ступенями 25см.
Убирать последнюю секцию полностью нельзя.
В Вашем случае нужно будет подрезать не только последнюю секцию, но и вторую, тоже.
Если у Вас есть возможность подъехать к нам в офис, то мы могли бы продемонстрировать Вам это на стендах вживую.
Лестница с производства приходит в пенополистироле, поэтому габаритные размеры не меняются и составляют 600*1200*40мм. При отправке через транспортные компании по желанию клиента груз дополнительно упаковывается в жесткую обрешетку - это деревянный короб, размеры которого превышают сам товар в среднем на 2 см.
Нет, у данной лестницы крышка не утепленная.
Если Вам необходимо утепление, то рекомендуем рассмотреть модели: FAKRO LWT Super Thermo; FAKRO LTK Thermo; Oman Nozycowe Termo Grey; Oman Polar. В действительности моделей с данным параметром больше перечисленного. Чтобы посмотреть их все - можете воспользоваться фильтром "Особенности" -> "Утепленный люк" в левом боковом меню. Также можете отправить заявку на звонок, мы перезвоним Вам для более подробной консультации, либо связаться с нами самостоятельно по номерам, указанным в шапке сайта.
Услуги по замеру и монтажу
| Выезд мастера в пределах МКАД | Выезд мастера за МКАД | Стоимость | ||
|---|---|---|---|---|
Монтаж чердачной лестницы в заранее подготовленный проем
| Бесплатно | Бесплатно + 20 ₽/км за МКАД | 15 000 ₽ | |
Монтаж чердачной лестницы весом более 40 кг или при высоте потолка от 3,5 м в заранее подготовленный проем
| 45 000 ₽ | |||
Монтаж чердачной лестницы с электроприводом весом более 40 кг или при высоте потолка от 3,5 м в заранее подготовленный проем
| 50 000 ₽ | |||
| Замер монтажного проема и оценка места и условий монтажа | 3 000 ₽ | 2 000 ₽ + 20 ₽/км за МКАД | 0 ₽ |
Дополнительные услуги
Если не знаете нужны ли дополнительные услуги, то закажите без них. О дополнительных услугах можно узнать у мастера
| Выезд мастера в пределах МКАД | Выезд мастера за МКАД | Стоимость | ||
|---|---|---|---|---|
| Подготовка монтажного проема | 3 000 ₽ | 2 000 ₽ + 20 ₽/км за МКАД | 5 000 ₽ | |
| Подготовка монтажного проема с опусканием более 80 мм | 10 000 ₽ | |||
| Монтаж утепляющего верхнего короба | 6 000 ₽ | |||
| Покрытие деревянной лестницы лаком | 3 500 ₽ | |||
| Доработка лестницы под уровень пола (уменьшение) | 2 000 ₽ | |||
| Утепление проема по периметру короба | 3 500 ₽ | |||
| Монтаж дополнительной ступени | 2 000 ₽ | |||
| Монтаж наконечников на ножки | 500 ₽ | |||
| Монтаж дополнительной секции к маршу | 2 000 ₽ | |||
| Монтаж поручня | 1 000 ₽ | |||
| Монтаж декоративной планки | 3 000 ₽ | |||
| Монтаж газового доводчика | 3 000 ₽ | |||
| Монтаж термочехла | 1 500 ₽ | |||
✶ — Бесплатно при заказе монтажа люка или чердачной лестницы ✶✶ — Бесплатно, при заказе монтажа люка или чердачной лестницы и если аксессуар входит в комплектацию товара | ||||
Выполненные работы по монтажу






























+7 (495) 988-28-21




















































































































































































