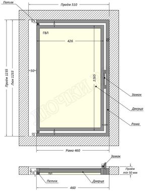
Люк под плитку Шагма для плитки 500*1200 (требуемый размер проема 510*1235, размер люка 460*1233)










Стандартные люки входят в складскую программу и, как правило, имеются в наличии на нашем складе.
В таблице размеров такие люки выделены оранжевым цветом.
Данные люки подлежат обмену и возврату и не требуют предоплаты.
Оплатить стандартный люк можно следующими способами:
- Наличными или картой в нашем офисе при самовывозе
- Наличными или картой водителю-экспедитору
- Безналичным расчетом
- Онлайн на сайте через защищенное соединение
Люк под плитку Шагма
| Товар |
|---|
| Люк под плитку Шагма 270*525, для плитки(требуемый размер проема 280*560, размер люка 230*558) |
| Эффект невидимки | Уплотнитель | Метод открывания | Требуемый размер проёма | Размер люка | Особенности | ||
|---|---|---|---|---|---|---|---|
| Ширина (мм) | Высота (мм) | Глубина (мм) | Глубина (мм) | ||||
| Максимальный | Нет | Нажатием, Присоской | 270 | 525 | 70 | 70 | Очень легкое открывание, Большая грузоподъёмность |
| Эффект невидимки | Уплотнитель | Метод открывания | Требуемый размер проёма | Размер люка | Особенности | ||
|---|---|---|---|---|---|---|---|
| Ширина (мм) | Высота (мм) | Глубина (мм) | Глубина (мм) | ||||
| Максимальный | Нет | Нажатием, Присоской | 270 | 525 | 70 | 70 | Очень легкое открывание, Большая грузоподъёмность |
| Цена | |
|---|---|
| Розничная цена | Цена по распродаже |
| 23 800 | 19 000 |
Общие параметры
Очень легкое открывание
Нажатием
Ограничительные уголки;
Магнит неодимовый;
Замок
В упаковке: 21 кг
Размеры
Высота: 1200 мм
Высота: 1235 мм
Высота: 1233 мм;
Глубина: 70 мм
Высота: 1165 мм
До: 600 * 1230 (ШД * ВД)
Погрешность при производстве может составлять +- 2 мм.
Производитель на свое усмотрение и без дополнительных уведомлений может менять комплектацию, внешний вид и технические характеристики модели.
Глубина рамы люка 40 мм, соответственно необходимо делать каркас из профиля не меньшей глубины. Если хочется "кататься" на дверце, то однозначно крепеж должен быть в кирпичную или монолитную стену и анкерами.
https://www.luchki.ru/catalog/luki_pod_plitku/shagma/500__1000
Услуги по замеру и монтажу
| Выезд мастера в пределах МКАД | Выезд мастера за МКАД | Стоимость | ||
|---|---|---|---|---|
| Монтаж люка под плитку с большей стороной до 800 мм в заранее подготовленный проем | Бесплатно | Бесплатно + 20 ₽/км за МКАД | 7 000 ₽ | |
| Монтаж люка под плитку с большей стороной от 801 до 1200 мм в заранее подготовленный проем | 8 000 ₽ | |||
| Монтаж люка под плитку с большей стороной от 1201 до 2000 мм в заранее подготовленный проем | 12 000 ₽ | |||
| Монтаж люка под плитку с большей стороной от 2001 до 2600 мм в заранее подготовленный проем | 20 000 ₽ | |||
| Замер монтажного проема и оценка места и условий монтажа | 3 000 ₽ | 2 000 ₽ + 20 ₽/км за МКАД | 0 ₽ |
Дополнительные услуги
Если не знаете нужны ли дополнительные услуги, то закажите без них. О дополнительных услугах можно узнать у мастера
| Выезд мастера в пределах МКАД | Выезд мастера за МКАД | Стоимость | ||
|---|---|---|---|---|
| Установка лед комплекта | 3 000 ₽ | 2 000 ₽ + 20 ₽/км за МКАД | 1 500 ₽ | |
✶ — Бесплатно при заказе монтажа люка или чердачной лестницы | ||||
Гарантия на выполненные работы - 3 года! (При соблюдении инструкций производителя)










+7 (495) 988-28-21 



















































































































































































