Напольный люк Самоподъемный Невидимка короб 500*1000
Уважаемые покупатели!
В связи с участившимися случаями подделок продукции нашего производства, вынуждены сообщить, что гарантировать качество данного изделия и осуществлять постпродажное (гарантийное) обслуживание мы можем только при наличии данной пометки в номенклатуре люка, в КП, в счетах, в накладных, в счет фактурах, на сайтах-партнерах. Бренд "лючки.рф" является зарегистрированным товарным знаком и защищен законодательно.
Если Вам предлагается идентичная номенклатура, но без приписки "лючки.рф ®" это означает, что продукт изготовлен не на нашем заводе со всеми вытекающими последствиями (провисание, ржавение, несоблюдение диагоналей, несоблюдение зазоров, отсутствие гарантийных обязательств и многое другое). Зачастую такую продукцию реализуют фирмы-однодневки.











Нестандартные (заказные) люки - это люки нестандартных размеров, изготавливаемые под заказ.
Люк может быть изготовлен практически в любом размере, с точностью до +-2 мм.
В таблице размеров нестандартные люки выделены белым или коричневым (если люк двустворчатый) цветами.
Заказные люки запускаются в производство только после предоплаты.
Минимальный размер предоплаты составляет 50% стоимости заказа.
Внести предоплату вы можете следующими способами:
- Наличными или картой в нашем офисе - от 50%
- Безналичным расчетом - 100%
- Онлайн на сайте через защищенное соединение - 100%
Напольный люк Самоподъемный Невидимка, Короб
Можно открыть из комнаты или погреба
Эффект автоматического открывания + Повышенный уровень безопасности
Очень прочная конструкция
Максимально незаметен после облицовки материалом
Повышенная защита от влаги, пыли и шума
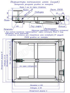
Общие параметры
Доска;
Ламинат;
Паркет;
Линолеум
Размеры
Длина: 1000 мм
Длина: 1000 мм;
Глубина: 97 мм
Длина: 940 мм
Длина: 985 мм
Погрешность при производстве может составлять +- 2 мм.
Производитель на свое усмотрение и без дополнительных уведомлений может менять комплектацию, внешний вид и технические характеристики модели.
По данному запросу лучше обратиться к нашим специалистам.
Как с нами связаться:
- написать нам на вотсап (https://wa.me/79857746449);
- написать на e-mail: mail@luchki.ru
- позвонить на бесплатную горячую линию 8(800) 775-25-37.
С уважением, команда Лючки.рф.
1. Не будет ли задевать край при открытии люка при такой толщине пола
2. Нужен ли доп. амортизатор, или достаточно 2-х штатных на эту массу
Если ГВЛВ не убирать, то максимальную толщину покрытия можно использовать 15 мм. Если убрать ГВЛВ, то на на дверь можно уложить 24 мм.
Амортизатор дополнительно ставить не нужно.
Услуги по замеру и монтажу
| Выезд мастера в пределах МКАД | Выезд мастера за МКАД | Стоимость | ||
|---|---|---|---|---|
| Монтаж напольного люка с большей стороной до 1000 мм в заранее подготовленный проем | Бесплатно | Бесплатно + 20 ₽/км за МКАД | 15 000 ₽ | |
| Монтаж напольного люка с большей стороной от 1001 до 1500 мм в заранее подготовленный проем | 17 500 ₽ | |||
| Монтаж напольного люка с большей стороной от 1501 до 2000 мм в заранее подготовленный проем | 20 000 ₽ | |||
| Монтаж напольного люка с большей стороной от 2001 мм до 2500 мм в типе Уголок в заранее подготовленный проем | 25 000 ₽ | |||
| Монтаж напольного люка с большей стороной от 2501 мм до 3000 мм в типе Уголок в заранее подготовленный проем | 27 500 ₽ | |||
| Монтаж напольного люка с большей стороной от 2001 мм до 2500 мм в типе Короб в заранее подготовленный проем | 27 500 ₽ | |||
| Монтаж напольного люка с большей стороной от 2501 мм до 3000 мм в типе Короб в заранее подготовленный проем | 30 000 ₽ | |||
| Монтаж напольного люка с электроприводом с большей стороной до 1000 мм в заранее подготовленный проем | 20 000 ₽ | |||
| Монтаж напольного люка с электроприводом с большей стороной от 1001 до 1500 мм в заранее подготовленный проем | 22 500 ₽ | |||
| Монтаж напольного люка с электроприводом с большей стороной от 1501 до 2000 мм в заранее подготовленный проем | 25 000 ₽ | |||
| Монтаж Трапа с высотой от пола до места крепления до 1000 мм | 10 000 ₽ | |||
| Монтаж Трапа с высотой от пола до места крепления 1001–2000 мм | 12 000 ₽ | |||
| Монтаж Трапа с высотой от пола до места крепления 2001 мм и более | 15 000 ₽ | |||
| Замер монтажного проема и оценка места и условий монтажа | 3 000 ₽ | 2 000 ₽ + 20 ₽/км за МКАД | 0 ₽ |
Дополнительные услуги
Дополнительные работы по подготовке проема рассчитываются отдельно в зависимости от сложности (перемычки, сварка, углубление в бетон/дерево, герметизация и пр.)
Гарантия на выполненные работы - 3 года! (При соблюдении инструкций производителя)











+7 (495) 988-28-21 




















































































































































































